Sortuj według marki
Darmowa dostawa

Waluty
Tłumaczenie
Wyszukiwarka
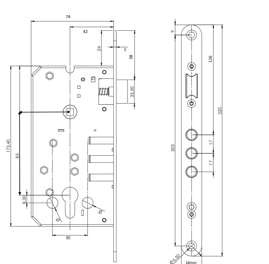
ROM 17 TUR Zamek wpuszczany główny PTZ
Cena regularna:
Cena regularna:
towar niedostępny
dodaj do ulubionych
Opis
Zamek rozporowy do drzwi PTZ i Stalprodukt (trzy bolce)
Dane techniczne:
- zamek przeznaczony do wkładki zwykły zabierak ( wkładki dostępne w innej kategorii )
- 3 sztuk bolców
- szerokość listwy czołowej 18 mm
- dormas 45mm
- pozostałe wymiary podane na zdjęciu,