Sortuj według marki
Darmowa dostawa

Waluty
Tłumaczenie
Wyszukiwarka
ISEO IS 216 Zamek przeciwpożarowy 72/65 wkładka
Cena regularna:
Cena regularna:
towar niedostępny
dodaj do ulubionych
Opis
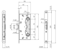
ISEO IS 216 Zamek przeciwpożarówy 72/65/8 wkładka
Zamek jednopunktowy wyposażony w zaczep oraz rygiel.
Zastosowanie i sposób działania
Model IS 216 dedykowany jest do zastosowania w drzwiach przeciwpożarowych. Występuje w jednej wersji, którą można stosować zarówno do drzwi prawych, jak i lewych. Rygiel i zaczep zamka poruszane są kluczem wkładki, a użycie klamki wpływa jedynie na sam zaczep.
Wymiary zamka i kasety
Rozstaw zamka wynosi 72 mm, a głębokość (dormass) 65 mm. Dodatkowo kaseta posiada otwór na trzpień klamki ⧄ 9 mm oraz otwór na wkładkę bębenkową. Wymiary kasety zamka to 185x84x17 mm.
Wytrzymała blacha czołowa wykonana ze stali
Model IS 216 jest wyposażony w wykonaną ze stali płaską blachę czołową o wymiarach 234,5x24x3 mm, dostępną w wykończeniu galwanizowanym na biało.
Dokumenty techniczne
Zamek został przebadany na zgodność z wymogami normy EN 12209:2003 oraz posiada oznakowanie CE. Jego właściwości potwierdza Certyfikat Stałości Właściwości Użytkowych opublikowany przez Instytut CSI oraz Deklaracja Właściwości Użytkowych wydana przez producenta - włoską markę ISEO.